寫在前面
基于精神專科醫院的特殊性,筆者提出“適精化設計”的概念——適精化設計是指在精神專科醫院建筑中充分考慮到精神疾病患者的身理與心理特點,做出相應的功能性設計,以滿足精神疾病患者人群的治療、康復及生活需求。
精神專科醫院是精神疾病患者就診、治療和康復的集中場所,精神專科醫院的設計和建造都應圍繞精神疾病患者的特點和需求來開展:首先,患者和醫護人員的安全必須得到保護,這是最基本的原則;其次,要給患者提供一個舒適的診療環境,減輕患者的心理壓力,這有助于患者主動配合治療和積極康復;再者,精神專科醫院的設計理念應貫穿以人為本并體現人文關懷,切不可設計成鋼鐵牢籠,而應體現精神康復港灣的思想。
本文從精神專科醫院病房區的布局、細節、用材、顏色四個方面來詳細探討,提出了“適精化”的功能化概念,以滿足精神疾病患者的特殊需求。
一、精神科病房特殊性
精神科病房與普通醫院的病房有著很大的不同,普通醫院病房需要考慮病房的正常采光通風,床與床之間留有足夠的空間給護士用于護理病人。
精神科病房則需要考慮到病患跟正常人有區別,窗戶不僅需要滿足正常的采光通風需要,還需要考慮保護病人,避免病人有極端情況發生,如做出跳窗等危險舉動,或者往窗外投擲雜物砸傷他人,或者砸碎玻璃等。
病房在設計時應考慮墻壁的平整,避免有柱子突出墻面形成尖角擦傷患者,病房內顏色以淡雅為主,不能有強烈的視覺沖擊,避免刺激患者。精神科病在設計布局時需要滿足視野開闊的條件,方便護士隨時檢查病患的狀態,病房內的門窗把手在設計安裝時要考慮不能有割傷病患的隱患,不應設置內鎖。
普通醫院住院的病人都喜歡擁有個人空間且對病房的硬件設施要求很高,因此目前的設計趨勢都以雙床間或者單人間為主。但是精神病醫院的病房多以多人間的布置形式。精神病疾病的治療手段主要以心理誘導為主,因此多人間的布置便于病人之間加深交流,使病人之間可以打開心扉,相互幫助相互扶持,使他們恢復正常的心智。從管理模式上講,單人間會增加醫護人員的看護任務,多人間的病人可以相互監督,因此精神病房都以多人間為主。
二、平面布局設計的七大原則
病房護理單元通常有六個功能區:包括病房區、護士站、病人活動區、各類治療室、公共聯系區和醫輔用房。護理單元應以護士站為中心區聯系組織其他幾個區,各功能區應保持相對獨立。
五個功能區有動靜之分、潔污之別、明確分區避免相互干擾。
設計原則應遵循
1、住院部的護理單元應該是一個獨立完整的系統,應避免穿套和干擾,公共交通點宜設置在護理單元盡端;
2、護士站應處于護理單元的核心部位,為提高醫護人員的工作效率應盡可能縮短護理距離,巡視頻率高的急重癥病房應緊靠護士站布置,便于護士直接觀察。配置觀察窗應為防撞擊玻璃(夾膠鋼化玻璃);
3、病房宜有良好的朝向和自然通風采光,以直角、鈍角、半圓或弧形排列為主減少墻面陽角,要求安靜、清潔;
4、活動區是供病人活動、交往、會客、閱讀、文娛等的活動空間,其位置宜與公共交通部分接近,與陽臺和庭院相連則更為理想,應避免對病房的干擾;活動區宜采用大開間的柱網,增加病人活動面積,也方便開展團體活動;配餐室可設置在活動區一側,病人有序地可通過安全傳遞窗取餐、喝水;
5、應設置獨立的醫護人員內部工作區,該區域應與病人活動區域設置有開放式的、人性化的且相對可靠的隔離措施;
6、病床的布設具備可變性及預留可能,如可將七床間布置為十床間、三床間布置為四床間,以滿足住院高峰期的情況;
7、考慮精神病人的特殊性,在集中活動區旁可設置了一小間吸煙室,并安裝大功率排風設備。
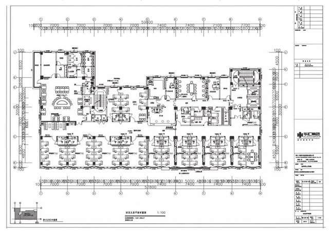
▲ 圖1 杭州市第七人民醫院醫療綜合樓項目病房層平面圖

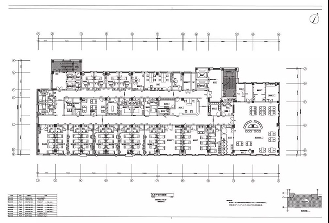
▲ 圖2 杭州市第七人民醫院精神科病房樓項目病房層平面圖
三、設計細節兼顧安全性與功能性
01外窗形式
病房外窗應避免出現監獄類房間特征,外窗可設計成狹窄多扇(如直軸式旋窗形式),也可采用推拉窗加裝固定限位器。玻璃應采用鋼化夾膠安全玻璃。既確保病人的安全又給予病人充分的采光和戶外視野,幫助其更好的治療康復。
02集中智能新風系統
由于外窗開啟面積有限,精神科病房的通風及換氣量遠不及普通醫院病房好,并且精神病人衛生意識差、服用精神藥物代謝后也容易產生異味,病房內空氣質量不佳。
為改善病房內空氣質量,通過智能集中新風系統,將戶外的新鮮空氣通過負壓方式吸入室內,經安裝在病區吊頂上的新風口進入室內。同時,再由對應的室內管路與數個功能房間內的排風口相連,形成的循環系統將帶走室內廢氣,集中在屋頂的排風口"呼出",形成新舊風良好的循環,如圖。

▲ 圖3 集中智能新風系統
03衛生間內的安全防護
衛生間的布置形式可以病房為單元,為每個病房單獨配置,也可集中設置公共衛生間(如活動區一側)。病房衛生間是一個封閉且存在諸多安全隱患的空間,因此在設計細節上有很多需要注意的地方,具體表現為:
1、衛生間的門不可設任何鎖具,防止病人將自己鎖進衛生間;
2、公共衛生間的隔斷應設置比較矮,不能讓醫護人員的視野存在盲區,要讓醫護人員隨時能夠了解病人的情況;
3、設置坐便器不可采用普通的坐便器安裝,因為水箱的水箱蓋可以拆下當做武器使用,所以為了考慮安全性應采用隱藏式水箱等經過特殊設計的坐便器(如檢修蓋需要通過沖水按鈕隱藏式機關才能開啟);
4、淋浴區域的地面采用了室外火燒花崗巖板或拉絲大理石,粗糙防滑的特點減少了病人滑腳跌倒的風險;
5、淋浴設備采用整體式,淋浴噴頭和混水龍頭嵌入式設置,避免病人作為自殺的固定點;
6、臺盆下水安裝應采用隱蔽式墻排形式,防止病人私自拆下;
7、衛生間的地漏應采取焊死措施,以防止病人作為自殘工具;
8、衛生間的鏡子可嘗試采用鏡面不銹鋼的材質,以避免銀鏡玻璃破碎帶來的傷害風險;
9、下水道應采用大口徑管道,防止病人將異物扔進管道發生堵塞后便于疏通。如圖4。

▲ 圖4 衛生間座便器、地漏、鏡面不銹鋼鏡子
04 集體淋浴安裝恒溫閥裝置
為防止洗浴時病人調節水溫不善,導致的燙傷,在集體淋浴區域的熱水進管上加裝了恒溫閥,既節約了能源消耗又降低了病人燙傷風險,如圖5。

▲ 圖5 恒溫閥裝置
05入戶雙道門禁系統及關門呼叫系統
病區入戶門采用雙道門設計,且兩道門的門禁系統設置為不能同時開啟。門鎖采用了機電一體鎖,鎖體在門中部通過鎖舌卡接,大大提高了鎖體的牢度;鎖體一旦失去電源不會自動打開,仍需要通過鑰匙解鎖,提高了病房主入口的安全性,降低了病人外逃的風險。在病區入口雙道門處均安裝了自動閉門器與關門呼叫器,提醒進出人員隨手關門,以防止生發病人外逃情況。
06其他
電器開關應統一集中安裝在護士站,燈具最好用不能接觸的吸頂燈,線路暗埋;設置衣柜可采用鋼制、柜門宜采用扣手形式、柜體應與墻體固定牢固、柜子要有鎖(最好是通用鑰匙)等。
四、材料的應用
01陶瓷薄瓷板
陶瓷薄板是一種由陶土、礦物等多種無機非金屬材料,經高溫燒制而成的厚度不大于6mm的綠色環保陶瓷制品。能滿足燃燒性能A1級要求,大規格薄瓷板(1800*900mm)接縫少,既易保養又能避免接縫滲漏風險。薄瓷板濕貼工藝,相較飾面板材干掛工藝,施工工藝簡便、節約了使用空間,但后續墻體需開孔敷線的靈活性變小。暖色的大規格陶瓷薄板在病房區的走廊及護士站墻面大面積應用,既突出了病房溫馨大氣的裝飾效果,又方便保潔打理。
02PVC墻塑
由于精神科病人易沖動、易自殘的特殊性,病房采用了1mm厚度的PVC墻塑飾面材料。PVC墻塑耐刮、耐磨、易清潔、有一定柔性,不像一般乳膠漆容易臟、易刮傷,對自殘病人還起到一定的保護作用,特別適合應用在病房墻面,但其對基層的施工質量要求較高(基層一旦出現空鼓、墻塑也隨之起鼓),不適合使用在易返潮的衛生間外墻側。
03護墻板
由于病房衛生間墻面材質為砂加氣磚,墻根處特別容易返潮,衛生間墻外側無論采用乳膠漆還是墻紙或墻塑均容易發霉、起鼓脫落。為解決這一質量通病,在病房衛生間墻外側采用抗倍特護墻板干掛工藝,抗倍特護墻板板與砂加氣墻之間留有干掛空隙,潮氣可通過該空隙排出。同時,抗倍特護墻板干掛施工后具備一定的柔性,且陽角處有專用同質弧型護角,對精神病人可起到一定的保護作用。
04鋼質門及通用鎖芯
醫院建筑破耗率較高的設施是病房門,病床、手推車進出均容易造成與病房門碰撞、刮擦,傳統木質病房門不耐撞、易破損、不容易修復,根據精神專科醫院歷年后勤設施維修統計數據,病房門的破損率與維修量較普通醫院高很多,因此病區的門應配置強度大、耐久性好的單扇鋼制門(凈通過寬度可達1.1m),同時,門五金宜采用美標制式(較國標、歐標使用壽命更長更耐用)。
為方便護士快速啟閉,所有病房門鎖均不能內側反鎖、統一鎖芯,所有門均使用通用鎖芯,即一把鑰匙可以開啟所有門的鎖。鎖芯的模具應與廠家協商留存,以方便后續通用鑰匙配置。
五 精神科病房特殊性
精神病房避免應用紅色和黃色,而紅色最好用于相對壓抑的環境中,綠色和藍色應被運用在需要安靜和注意力的場所。
冷色應該應用于易使人產生騷動、緊張和焦慮等情感的環境中,高飽和度的顏色應避免用于病房里,冷色調和低照明下,更有利于使人集中精神,暖色調和高亮度則相反,易產生警覺和外向心理。
具有強烈對比的圖形和背景形式以及特別明亮的顏色應避免用在精神病房,由于此種顏色透過環境會造成沖擊,令人恐懼。
在暖色調環境下,時間易產生延宕感,物體看上去體積更大,而房間顯得更小。但這些感覺和效果在冷色調中則全部相反。因此,冷色調易用在進行單調工作的場所中,以減輕工作者對工作時間長度的誤判。
視覺環境缺乏變化會引起感覺喪失。那些長期在療養院、醫院和公共機構中的人群特別需要有變化的環境:如燈光變化,墻壁裝飾變化,工藝品擺設的變化等等。如果空間內大多數是單調的白色墻壁且缺乏生動有趣的圖案點綴或者藝術品裝飾的話,這將奪去大腦保持健康所需要的不斷變化的刺激。
當光源高度較低的燈光表面呈現輕微的粉色、橙色或黃色的時候,物體表面的顏色顯得更為正常;光源高度較高的冷色調燈光下也會產生相同的效果。

▲ 圖6 病房護士站

▲ 圖7 三人間病房
基于上述四個方面的特殊設計理念,筆者提出“適精化設計”的概念——適精化設計是指在精神專科醫院建筑中充分考慮到精神疾病患者的身理與心理特點,做出相應的功能性設計,以滿足精神疾病患者人群的治療、康復及生活需求。
“適精化設計”具備人性化、和諧、安全、舒適等特質,使患者能夠感到溫暖、被保護及歸屬。因此,在今后的精神專科醫院病房設計中應加大推廣適精化設計的理念,讓精神疾病患者這一特殊群體盡快適應依從治療、感受溫暖關愛、加快回歸社會的康復腳步。
文章摘自:筑醫臺資訊
文章僅代表作者個人觀點,供行業同仁參考交流,不代表筑醫臺立場。
作者簡介:陳 戎 杭州市第七人民醫院副院長
畢業后供職于浙江省建筑科學設計研究院建筑設計所從事結構設計;2008-2016年在杭州市衛生事業發展中心工作,先后擔任辦公室副主任、規劃發展與項目管理處副處長、資產管理處處長等職務;2016年至今,擔任杭州市第七人民醫院副院長,具體分管總務科(包括保衛、基建)、財務科、膳食科。