
▲ 哈維兒科診所一側
哈維(Harvey)兒科診所位于美國阿肯色州羅杰斯(Rogers)市,其新建的診所辦公建筑在周圍設施中非常引人注目。該診所所在地曾是一片眾多具有地方特色的建筑,如谷倉、棚屋、糧倉、房車以及皮卡等功能用房,而在此基礎上新建成的診所建筑更是完美地延續了這一地方特色,將過去的倉儲功能區域全部轉換成了現在的醫療功能區域,以滿足周邊居民的就醫需求。
▲ 哈維兒科診所與周圍環境對比
哈維兒科診所的新建筑安靜的矗立在這里,其整體造型、材料應用、顏色搭配都很獨特,米黃色的外立面設計與周圍環境形成了強烈的對比。
▲ 診所米黃色的外立面與周圍環境形成了鮮明的對比

▲ 哈維兒科診所遠景
項目信息
項目名稱:哈維(Harvey)兒科診所
項目位置:羅杰斯市,阿肯色州,美國
建設設計:Marlon Blackwell 建筑設計事務所
項目時間:2016年
承 包 商:SSI Inc
建筑面積:1493平方米
建筑設備管道工程:HP Engineering,Inc.
景觀設計:Stuart Fulbright
土木工:Bates&Associates,Inc.
結構工程:Tatum Smith Engineers,Inc.
獲獎情況:2017年醫療建筑設計獎(A類,低于2500萬美元)
該建筑外形設計獨特,剛烈粗獷,不僅為該地區的主要商業走廊-南52街塑造了高大的形象,同時也為當地兒童和父母就診提供了顯著的標志。大面積的卡宴色金屬面板包裹了建筑南立面,而立面邊緣的天窗又為整棟建筑提供了自然光通道,同時還在視覺上延伸了建筑的長度。卡宴色金屬面板下方為一樓入口,這里還專門設計了一個患者落客區,方便來往診所的患兒及其陪護人員出入。落客區通道兩側的空間都被包裹在玻璃立面中,不僅與周圍的景觀建立了聯系,也與診所上方層樓建立了視覺和材料上的分隔。

▲ 被大面積卡宴色金屬面板包裹的診所南立面
從一樓入口進入建筑物后,可以通過嵌入在建筑 “基座”中的樓梯上行。天窗上方的藍色玻璃仿佛為照射進來自然光線戴上了有色濾鏡,將藍色光線灑滿了樓梯,使得整個空間充滿了爛漫氣息。診所內部絢麗的色彩應用增強了空間的垂直感,意示著上方樓層有一個利于身體康復的空間。沿著樓梯上行,即可到達大樓東側的候診室。建筑東部玻璃墻上的紙板可以保護內部空間免受過度自然光的照射,同時起到調節室內亮度和溫度的作用。

▲ 天窗上方的藍色玻璃仿佛為照射進來自然光線戴上了有色濾鏡
▲ 布滿藍色自然光線的走廊空間

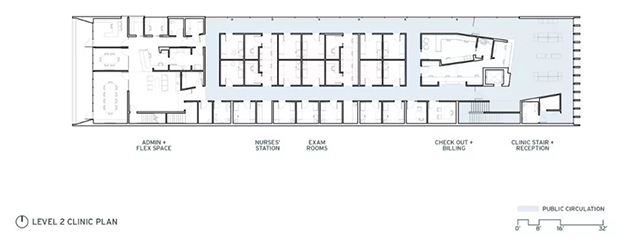
上行樓梯通道的藍色自然光沿著環形走廊共分散著十六個檢查室,并形成了一條簡單的循環路徑,覆蓋了從候診室、登記室、檢查室、治療室,直至出院的就診全流程功能區域,實現了“一條龍”流水作業就診模式,大大提升了診療效率。走到走廊中間,值得注意是分布在檢查室之間的兩個護士站上方的天窗設計,狹長的天窗為自然光線照入室內提供了便利通道,不僅提升了室內空間的亮度,還為整個工作室帶來了活力。

▲ 從護士站上方的天窗照入室內的自然光線為整個工作室帶來了活力

▲ 護士站對面的候診休閑大廳

▲ 診所內的候診空間

▲ 診所內的診室設計
位于大樓西側的Flex Space為診所的行政辦公區,是診所管理人員的專屬工作區。這里的雙層空間被建筑南半部的彈出窗口所遮蓋,這樣的設計大膽、形象,使得整個空間形成了由“一個夾層空間——哈維醫生的私人休息室——北部玻璃墻面”組成的現代工業風辦公區,同時為自然光線照入室內提供了通道,猶如一個與室外天空渾然一體的“自然寶盒”。在一樓西側的員工休息室內可眺望室外的小走廊和花園,不失為一個安靜自然的的休憩場所。

▲ 診所內部大膽、形象的空間切割設計

▲ 藍色自然光線下的內部空間切割
卡宴色金屬面板是為該建筑專門定制的外立面顏色。建筑物的北側使用了標準的風化鋅金屬板,從表面上看,它在形式上顯得更加安靜與抽象。帶狀的窗戶設計增強了整個建筑形體的水平狀態,深色與冷灰色的碰撞應用更加增強了建筑的穩固感,同時凸顯了南立面飽和、溫暖的色調,冷暖色調的碰撞式設計使得整個建筑物更加鮮明和立體。

▲ 建筑北立面的帶狀窗戶立面設計增強了建筑的水平狀態
建筑西立面的挑檐采用了扁平的金屬面板輪廓,而金屬框架肋板輪廓為北立面和南立面增添了微妙的紋理質感。整個外立面都使用了定制化的斷裂金屬飾邊,從而使外墻的細節得以放大,從而增強了建筑物的抽象質感,雅致而不張揚。
建筑南立面的格子狀窗戶設計哈維兒科診所是一個與時俱進的醫療系統,其循序漸進的建筑設施面向所有有就醫需求的患者,旨在為他們尋求一種整體方法以促進疾病治療和康復效果。該建筑設施是與其醫療實踐相輔相成的結合體,它不僅提供了全面的醫療功能空間,提升了患者的就醫體驗更是創造了一個被包裹在大膽造型之內的高品質、高效率的醫療協作空間。

▲ 哈維兒科診所內部醫療辦公空間設計

▲ 哈維兒科診所所在區域整體規劃圖

▲ 剖面圖

▲ 一層平面圖

▲ 二層平面圖

▲ 哈維兒科診所建筑流線設計
來源:arch2o、metal construction news
攝影:Timothy Hursley
編譯:Chester