建筑師: de Kovel architecten, studio AAAN
面積: 1070 m²項目
年份: 2019
攝影師: Sebastian van Damme
De Kapel”是一座巨大的農舍,位于Zuidwijk的南部邊緣,鹿特丹的一個住宅區內。這座國家歷史遺跡已被改造成臨終關懷中心:“ de Liefde” 臨終關懷醫院。茅草建筑已被進一步翻修和擴建。加上新的“機翼”,穿越紀念碑和花園的路線體驗,自然,明亮和寬敞的空間被用來做莊嚴的告別。
1975年,這座18世紀具有夸張山墻立面造型的農場被指定為國家歷史遺跡。從1992年至2017年,“ de Kapel”被用作失智成年人的工作中心。由于過去進行了大規模的翻新,現有農舍的巨大價值主要在于建筑物的類型,房屋舊外墻和氣勢宏偉的茅草屋頂。

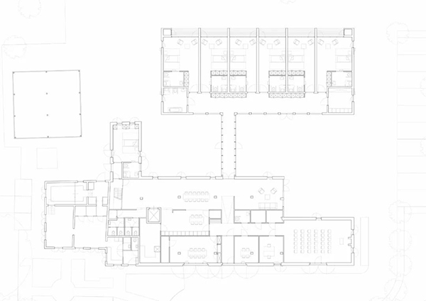
過去的牛棚用作臨終關懷的起居室。在如此長的空間中,仍然可以看到古老的巨形椽子。其他功能,例如廚房,接待區,客房和團隊活動室都直接與該空間相鄰。農場盡端的雙層高空間是“儀式空間”,人們可以聚集在一起以佛教傳統來告別和紀念。
玻璃走廊從農場的公共區域延伸到帶客房的新建筑。綠色,自然和光線的體驗在這里至關重要。這就是為什么封閉花園周圍的畫廊有很多玻璃的原因。木柱,木墻和幕墻使房間保持清晰的節奏。為了將農場重建為臨終關懷中心,已將六間客房安置在舊農場之外。
在不影響農場歷史價值的前提下,很難達到良好居住環境的要求(包括聲,光,通風和隔熱)。因此,新建筑配備地源熱泵,太陽能電池和具有熱回收功能的通風設備。該擴建的建筑靈感來自許多此類農場的暗木棚。
最終呈現出來的是農舍加上適度的擴建,在景觀中形成了和諧自然的整體。與傳統的棚屋不同,新建筑采用現代設計,帶有古銅色框架和集成太陽能電池的屋頂。支撐結構,外墻和內飾的大部分都由木頭制成??腿丝梢詮脑鹤永锏淖呃鹊竭_客房。
每間客房均設有私人浴室,落地窗和面對農場花園的私人有蓋露臺。這個房間是客人可以回歸以尋求和平與親密的地方。在“ de Liefde”臨終關懷中心的生活是生命的最后時期,在該建筑中,試圖提供一個有意義的環境,在美好的風景中告別和紀念。
來源:Archdaily